Engage
Discretionary Use Proposal
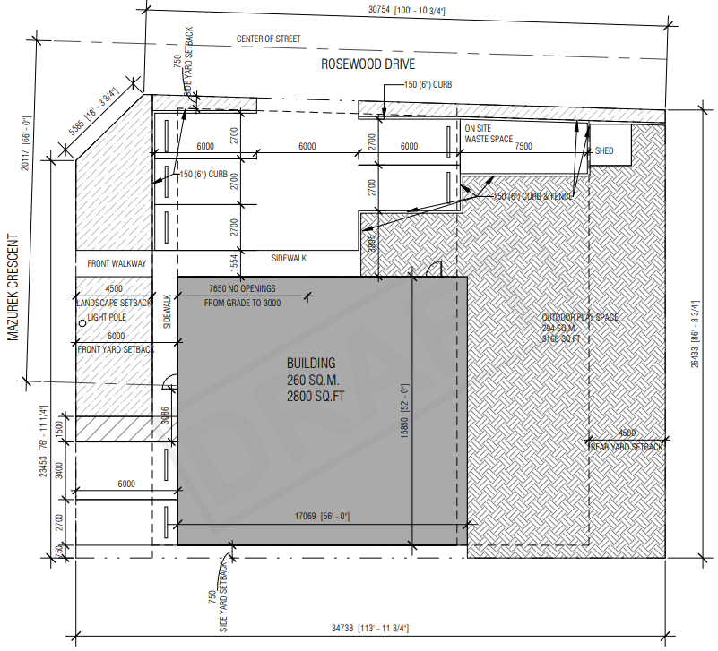
Following feedback received through engagement, the applicants have reduced their proposal to a Day Care Centre with a capacity of 45 persons under supervision and 10 staff for the subject site.
Roots of Learning has applied for Discretionary Use approval to operate a Day Care at 190 and 194 Mazurek Cres in the Rosewood neighbourhood.
This site is zoned R2 - Low Density Residential District 2 under the Zoning Bylaw. The purpose of the R2 District is to provide for residential development in the form of one- to four-unit dwellings as well as related community uses. Day Cares are listed as a discretionary use in the R2 District.
Subject to discretionary Use approval, the proposed Day Care will have a capacity for up to 45 persons under supervision and 10 employees at any given time.
Day cares must provide at least 7m² of outdoor play space for each person under the age of 13. At least 3.5m² per person must be located on-site and fenced. The remaining area can be located at a nearby location provided they obtain Ministry of Education approval. The revised application is proposing to provide approximately 252m2 of outdoor play area which will be located on site. Approval from the Ministry of Education has been received to use nearby parks to supplement the remaining requirement.
The parking and loading needs will be assessed through the review of the Discretionary Use. A minimum number of spaces may be required based on the parking plan, location, and other relevant factors like the number of employees or expected visitors. The revised proposal will provide for 9 parking spaces to be located on site which will be accessed from Rosewood Dr., 1 of which will be tandem.
Prior to operating, the applicant will be required to obtain appropriate licensing and approval from the Ministry of Education, Early Years and Childcare Branch.
Location Map

Provide Feedback
Questions and comments on this proposal are invited at this time by contacting:
Tyler Kopp, Planner
306.986.3639