Skip to main content
Home
Create Account Sign In
Engage
Contact Us
Search

Main Menu

  • Services for
    Residents
    • Connect with your City
      • Engage with your City
      • Request Services Online
      • Contact Us on our Website
      • Contact Us on Social Media
      • Contact Us by Phone
      • Organizational Charts
      • Free public WiFi pilot project
      • News Subscriptions
      • Open Data
      • Canada Post Service Disruption
    • Housing & Property
      • City-Owned Trees
        • Tree Maintenance & Inspections
        • Tree Planting
          • Request a Boulevard Tree
          • Plant a Tree on your Property
          • Community Tree Planting Pilot Program
        • Tree Protection Requirements
          • Tree Permits
          • Tree Protection FAQs
        • Tree Diseases & Pests
          • Dutch Elm Disease
        • Tree Care
        • Industrial Tree Planting
      • Boarders
      • Yard & Garden
        • Yard & Garden Pests
          • Insect Biocontrols
          • Mosquito Counts
        • Public Space Gardening
        • Garage and Yard Sales
        • Recreation Vehicles
        • Residential Fences
        • Property Maintenance & Waste Management Appeals
        • Weed Control
        • Be Pesticide Free
        • Healthy Yards
      • Graffiti Reduction
      • Affordable Housing
        • Affordable Housing Program and Resources
        • Affordable Housing Incentives
        • Rapid Housing Initiative
      • Point-in-Time Count
      • Good Neighbour Guide
        • Security Camera Usage
    • Property Tax & Assessment
      • Assessment Appeals
      • Assessment
      • Property Tax
        • Property Assessment & Tax Tool
          • Terms of Use
      • Tax Payment
        • Seniors Property Tax Deferral Program
        • Tax Instalment Payment Plan Service (TIPPS)
      • Request For Information
      • Municipal Tax Ratio Policy
    • Homebuilding, Renovations & Improvements
      • Getting Started
        • Building Permits
        • Building Permit Fees
        • Building Permit Timelines
        • Bylaws and Policies
      • Project Guides
        • Decks
        • Garages
        • Home Renovation, Addition or New Construction
        • Demolition
        • Secondary Suites
          • Legalizing Existing Suites
        • Garden and Garage Suites
        • Swimming Pools
        • Homeowner Plumbing Permit
        • CMHC Design Catalogue
      • Zoning and Land Use
      • Permit Forms & Applications
      • Building Permit Inspections
        • Inspection Checklist
      • Building & Property Information
        • Civic Addressing
        • Permit Data & Reports
      • 2020 National Codes
      • Renovation Resources
    • Power, Water & Sewer
      • My Utility Account
        • Account Summary
        • Payment Information
        • Connect or Disconnect Service
        • Reading Your Meter
          • Submit Your Meter Reading Online
        • eBill Signup
          • Switch to eBill!
        • Bill History
        • Consumption & Charges
        • Equalized Payment Plan
        • Payments & Credits
        • My Carts
        • Waste Utility Subsidy
      • MyProperty - Coming September 2026
      • Utility Rates
        • Electrical Rates
          • Electric Heat Relief Rebate
        • Waste Rates
        • Water Rates
      • SmartUTIL
        • Be Water Wise
        • Be Energy Wise
      • Drinking Water
        • Drinking Water Advisories
          • DWA Dashboard
        • Water Quality Characteristics
        • Water Treatment Plant
        • Cross Connection Control
          • Cross Connection Prevention
        • Licensed Backflow Testers
        • Water Meters
          • Water Meter - AMI Project
          • Water Meter Updates
        • Water Workers Week
        • Lead Water Pipes
        • Water Main Breaks & Repairs
          • Water Main Replacement Program
        • Water & Wastewater Utility Rates
        • Your Water Meter
        • Frozen Pipes
        • Water Service for Businesses
      • Saskatoon Light & Power
        • Customer Care
          • Your Meter
        • Outages & Safety
          • Outages
          • Electrical Safety
        • Street Lighting
        • Services & Projects
          • Underground Line Locates
          • New or Upgraded Electrical Service
          • School Tours
          • Tree Trimming
          • Work With Us
        • Sustainable Electricity
          • Landfill Gas Collection & Power Generation System
          • Customer Self-Generation Programs
          • Dundonald Avenue Solar Farm
          • Solar Power Demonstration Site
          • Renewable Subscription Service Program
        • About Us
        • Electrical Worker Week
      • Wastewater
        • Lift Stations
        • Sanitary Sewer
          • Sewer Use Bylaw
          • Sewer Backup
        • Wastewater Treatment Plant
          • Nutrient Recovery Facility
          • Digester & Heating Upgrades
        • Waste Hauler Disposal Facilities
        • Biosolids Pipeline Corridor Project
        • Prevent Irritable Sewer Syndrome
      • Underground Line Locates
      • Storm Water
        • Storm Water System
          • Ditch Crossings and Culvert Guidelines
          • Invasive Species
          • Storm Ponds
          • Storm Water and Flood Protection Charges
        • Flood Control Strategy
          • 24th Street Storm Sewer Project
          • USask Dry Storm Pond
        • Home Flood Protection
          • Protective Plumbing
          • Spring Snowmelt
        • Storm Water Credit Program
        • Storm Water Management Utility Exemption
      • Landlord-Tenant Agreement
    • Waste & Recycling
      • Collection Calendar
      • Garbage
        • Curbside Garbage (Black Cart)
        • Multi-Unit Garbage
        • Material Recovery Centre & Landfill
        • Commercial Garbage Collection
      • Recycling
        • Curbside Recycling
        • Multi-Unit Recycling
        • Recycling Depots
        • Household Glass Program
        • Business Recycling
        • Cardboard Recycling
        • Recycling Education
      • Organics (Food & Yard Waste)
        • Green Cart Program
        • Compost Depot
        • Home Composting
        • Christmas Tree Composting
        • Business Organic Waste
        • Multi Unit Organics
        • Organics Education
        • Organics Processing Facility
      • Waste Wizard
        • BizWiz
      • Cart Care
      • Household Hazardous Waste
      • Illegal Dumping
      • Community Programs
        • Assisted Waste Collections
        • Curbside Swap
          • List Your Curbside Swap
          • View Curbside Listings
        • Newcomer and EAL Recycling and Composting Workshops
        • School Education
        • Waste Reduction Wagon
      • Waste Reduction & Diversion
    • Fire & Emergency
      • About SFD
        • Fire Stations
          • Fire Station No. 10
          • Regional Training Facility
          • Relocating Fire Station No. 5: Improving Community Response
        • Master Plan
        • SFD Strategic Plan
        • Year in Review
      • Education & Awareness
        • Life/Fire Safety Education
          • Carbon Monoxide
          • Cooking Safety
          • Emergency Vehicles & Rules of the Road
          • Shelter Spaces
          • Encampments
          • Fire Extinguishers
          • Fire Hydrants
          • Fire Pits
          • Fireworks
          • Home Escape Plan
          • Lithium-Ion Batteries
          • Needles & Sharps
          • Outdoor Grilling Safety
          • River & Water Safety
          • Shelter in Place
          • Smoke Alarms
          • Smoking Materials
        • Safety & Prevention Programs
          • Steps to Safety
          • Steps to Safety Training
      • Response & Recovery
        • Emergency Rescue Operations
        • Fire Recovery & Support
      • Inspections & Investigations
        • Fire Inspections
        • Fire Investigations
        • Plan Reviews
        • Permits
      • Emergency Management
        • notifynow
        • Emergency Preparedness
        • Extreme Cold Weather Emergency Response Plan
        • Extreme Heat
        • Wildfire Evacuations
        • Report a Spill
        • Command 9: Mobile Command Unit
        • Emergency Phone Numbers
      • Fire Community Support
      • Event & Presentation Requests
      • Recruitment
        • Firefighter-Paramedic Recruitment Roadmap
        • Firefighter Candidate Information Session
      • News & Information
    • Pet Licensing & Animal Services
      • Pet Licensing
        • Pet License Vendors
      • Subsidized Spay & Neuter Program
      • Dog Parks
        • Behaviour Awareness Training Sessions
        • Commercial Dog Walker
        • Dog Day of Summer
      • Enforcement
        • Paying your Animal Control Notice of Violation
        • Dangerous Animals
        • Reporting Nuisance Barking or Howling
        • Reporting an Animal at Large
      • Bite Prevention
      • Cats
      • Wildlife Management
        • Coyotes
      • Injured or Deceased Animals
      • Pet Wellness Guide
  • Moving
    Around
    • Accessibility
      • Accessibility Rights
      • Accessible Building Standards
      • Accessibility Action Plan
    • Transit
      • Link - Saskatoon's Rapid Transit
        • Link - Construction Updates
        • Link - 1st Avenue
        • Link - Project Background
        • Link - Resources
          • Link - College Drive Design and Open Houses
        • Link - Working Together
        • Link - Our Brand Story
        • Link - Public Art Program
        • Link - News
      • Open Data From Saskatoon Transit
    • Cycling
      • BYXE Week
      • Cycling Plans & Projects
      • Cycling Programs
      • Cycling Safety
        • Cycling Guide and Tips
        • BYXE Break
        • Rider Safety
        • Additional Cycling Resources
        • Winter Cycling Tips
      • Electric Scooters (E-scooters)
    • Driving & Roadways
      • Driving
        • Safe Driving
        • School & Playground Zones
        • Photo Speed Enforcement
        • Red Light Cameras
        • Traffic Safety Action Plan
        • Winter Driving
        • Slow to 30 in Work Zones
        • Destination Street Signs
          • Tourism Destination Pictograms
        • Neighbourhood Bikeways 30 km/h Speed Limit
        • Respect Work Zones
      • Managing Traffic
        • Transportation Master Plan
        • Traffic Noise
        • Neighbourhood Traffic
          • Neighbourhood Traffic Reviews
          • Traffic Calming
        • Merging Guidelines
        • Traffic Studies
        • Traffic Permits
          • Right-of-Way Permit
          • Truck Permits
          • Curb, Sidewalk and Ditch Crossing Permits
          • Traffic Detour Request
        • Intersections
      • Road Maintenance & Repair
        • Back Lanes
        • Construction
          • College Drive and Related Construction Projects
        • Dust Control Testing
        • Pavement Marking
        • Pothole & Utility Cut Repairs
        • Road Treatments
        • Street Sweeping
          • Leaves
      • StreetSmarts
      • Traffic Bylaw
      • Winter Road Maintenance
        • Emergency Response Plan
        • School Zone Snow Removal
        • Sidewalk Clearing
        • Snow and Ice Report
        • Snow Storage Sites
        • Catch Basin Drainage
    • Bridges
      • The History of our Bridges
      • Bridge Maintenance
      • Chief Mistawasis Bridge and Traffic Bridge
    • Walking
      • Sidewalk Preservation
      • Walking Routes & Maps
      • Winter Walking & Snow Clearing
      • Walkways
      • Sidewalk Planning
      • Active Transportation
        • Active Transportation Advisory Group
      • Pedestrian Safety
    • Parking
      • Public Pay Parking
      • Parking Tickets
        • Pay a Ticket
        • Questions about a Ticket?
      • Parking Programs & Permits
        • Accessible Parking
          • Accessible Parking Permit
        • Residential Parking Program
        • Temporary Reserved Parking Program
        • Loading Zones for Business
        • Veteran Parking
      • Vehicle Seizures
      • Understanding Parking in Saskatoon
  • Parks, Recreation
    & Attractions
    • Recreational Facilities & Sport Fields
      • Leisure Centres
        • Admission Rates & Options
          • Corporate LeisureCard
        • Cosmo Civic Centre
        • Harry Bailey Aquatic Centre
        • Lakewood Civic Centre
        • Lawson Civic Centre
        • Saskatoon Field House
        • Shaw Centre
        • Terry Fox Track
        • Swimming Pools
      • Golf Courses
      • Gordon Howe Campground
      • Outdoor Pools
      • Outdoor Tennis / Pickleball Courts
      • Summer Play Programs (Paddling Pools & Spray Pads)
      • Skateboard Sites
      • Sport Fields
      • Youth Centres
      • Skating Rinks
        • Indoor Rinks
        • Outdoor Rinks
        • Skating Oval
      • Toboggan Hills
      • Winter Trails
      • Recreation Facility Rentals
    • Recreational Programs & Activities
      • Drop-in Programs
      • Fit Over 50 Programs
      • Leisure Online
      • Leisure Guide
      • Special Needs Services
      • Leisure Access Program
      • The First Step Program
      • Become a Lifeguard
      • Recreation & Parks Master Plan
      • Metawetan Programs
      • Become a Fitness Instructor
      • Summer in Saskatoon - Find Your Fun!
      • Become a Recreation Leader
      • Low Cost / No Cost Opportunities
      • Registered Programs
      • Swimming Lessons
    • Events & Attractions
      • Event Planning
      • Nutrien Playland
        • Playland Parties
        • Rental Information
      • Saskatoon Forestry Farm Park & Zoo
        • Saskatoon Zoo
          • Zoo Animals
          • Affinity Learning Centre
          • Kinsmen Express Train
          • Prairie Butterfly House
          • Small Mammal House
          • Zoo Gift Shop
          • Zoo Season Pass
          • Accessible Pier
          • Orano Fun Zone Playground
          • Zoo Café
          • Conservation Research & Education
        • Forestry Farm Park
          • Fishing Pond
          • Forestry Farm House
          • McDonald's Natural Place to Play Playground
          • Secret Gardens
        • Rental Facilities & Information
          • Ball Diamond & Cricket Pitch
          • Forestry Farm House (Superintendents Residence)
          • Gazebo Picnic Site
          • Hall
          • Lions Event Pavilion
          • Wedding Garden
        • Partner Organizations
      • Conservatory
      • Farmers' Market Building
    • Parks
      • Park Locations & Amenities
      • Park Etiquette
        • Smoke-Free Outdoor Public Places
      • Park Bookings & Permits
        • Park Access Permits
        • Outdoor Special Events & Festivals
          • Special Event FAQs
          • Special Event Forms & Permits
          • Services & Fees
          • Submission Timelines
        • Use of Drones
        • Seasonal Commercial Enterprise in Parks
      • Park Maintenance
        • Prescribed Fires
      • Park Upgrades & Development
      • Greenhouse
      • Woodlawn Cemetery
        • Cemetery Plots
        • Memorialization Options
        • Vault Options
        • Release of Cremated Remains
  • Community, Culture
    & Heritage
    • Accessibility Plan
      • Our Accessibility Plan
      • The Accessible Saskatchewan Act (Bill 103)
    • Arts & Grants
      • Public Art
      • Culture Plan
      • Cultural Mapping
      • Grants
      • Arts & Culture Activities
    • New to Saskatoon
      • Life in Saskatoon
      • Finding a Job in Saskatoon
      • Education in Saskatoon
      • Welcoming Immigrants & Refugees
        • Community Connections for Newcomers
        • Resources & Supports for Newcomer Service Providers
    • Neighbourhoods & Community Associations
      • Community Associations
        • Community Association Volunteers
      • Block Parties
      • Naming Saskatoon
      • Recreational Use of Stormwater Ponds
    • Cultural Diversity
      • Indigenous Initiatives
        • About Indigenous Initiatives
        • Treaty 6 & Métis Homeland
          • History of First Nations and Saskatoon
          • History of the Métis in Saskatoon
        • Annual Events
        • Reconciliation Visual Identity
        • Indigenous Women & Girls and Two-Spirit People
        • Reconciliation Saskatoon
        • Indigenous Technical Advisory Group
        • Community Resources
        • Chief Mistawasis Bridge
        • TRC Calls to Action Inspired Bus Shelter Art
        • Other Initiatives & Updates
      • Living in Harmony Awards
      • Race Relations: City Policy
      • Anti-Racism Education
      • Race Relations Month
      • DEIAC Sponsorship Program
      • Have Tea with Me: Promoting a culture of inclusion
      • Place Naming
      • Reconciliation and DEI
    • Heritage Properties & Programs
      • Discover Your Property's History
      • Municipal Heritage Property Designation
      • Heritage Plan, Policy & Program Review
      • Doors Open Saskatoon
      • Facade Conservation & Enhancement Grant Program
      • Heritage Register
    • Saskatoon History & Archives
      • History
      • Archives
      • Woodlawn Cemetery History
      • Nutana Cemetery (Pioneer Cemetery)
    • Community Outreach and Supports
      • Know Who to Call
      • Saskatoon’s Affordable Housing Strategy
      • Public Washrooms and 24/7 Navigation Hub
      • City of Saskatoon’s Community Safety & Well-Being Response
      • Related Council Reports & Information
      • Encampments
      • Fire Community & Support
      • Overdose Outreach Team
      • Saskatoon Extreme Cold Weather Emergency Response Plan
      • Saskatoon Extreme Heat & Air Quality Emergency Response Plan
      • Shelter Spaces
  • Business
    & Development
    • Economic Profile
      • Economic Profile Trends
      • Business Statistics & Publications
    • Planning
      • Growth Plans
        • Official Community Plan
        • Plan for Growth
          • Transit Plan
          • Corridor Planning
        • Regional Planning
          • Saskatoon North Partnership for Growth (P4G)
          • Boundary Alteration
        • Sector Plans
        • Neighbourhood Concept Plans
      • A Vibrant Downtown
        • River Landing
          • Connected to the Community
          • A Dynamic Mix of Land Uses
          • A place for celebration
          • Landmark features
      • Programs & Projects
        • First Nations and Métis Lands and Relationships
          • Honouring Treaty
          • Urban Reserves and Land Holdings
          • First Nation Community Profiles
          • First Nations and Métis Governance and Communications
        • Urban Design
          • Banner Program
        • Neighbourhood Planning
          • Local Area Planning
          • Neighbourhood Safety
          • CPTED Review Committee
          • Vacant Lot & Adaptive Reuse Strategy
          • South Caswell Redevelopment
          • Imagine Idylwyld
          • Pleasant Hill Village
        • Housing Action Plan
          • Development of City-Owned Properties
      • Planning Publications
      • Maps
        • Zoning Address Map
        • Address Map
        • Open Data Catalogue
    • Business Licenses
      • Start a Business
        • Specialized Requirements
      • Business Licence Categories
        • Commercial
        • Home Based
        • Non-resident Businesses
        • Adult Services
        • Cannabis
        • Day Cares
        • Mobile Food Truck
        • Motor Vehicle Sales Establishments
        • Mobile Vending Carts
        • Residential Care Homes
        • Short-Term Accommodations
        • Sidewalk Cafes & Parking Patios
        • Taxis & Transportation Network Companies
      • Business Licence Online
      • Saskatoon Appeal Board
    • Development Regulation
      • Zoning and Land Use
      • Developers & Homebuilders
        • Condominium Approvals
        • Neighbourhood Infill Development
        • Minor Variances
        • Zoning Violations
        • Land Use Applications
        • Development Appeals
        • Rezoning Property
        • Subdividing Property
        • Discretionary Use
        • Wetland Policy
        • Riverbank Overlay District
          • Available Geotechnical Information
        • Landscaping Requirements
      • Lot Drainage
        • Residential Property Lot Grading Guidelines
        • Lot Grading Plans
        • Residential Lot Grading Styles
        • Lot Grading Requirements
        • Infill Site Grading
        • Commercial & Multi-Family Site Grading
        • Site Grading Inspections
      • Specifications & Standards
        • Licensed Water & Sewer Contractors
        • Hydrant Flow and Short Service Connections Inspection Forms
        • Specifications
        • Design & Development Standards Manual
        • Drawings
        • Signs
      • Asbestos Awareness
        • Asbestos Registry
        • Asbestos Management Program
    • Building, Development & Construction
      • Industrial, Commercial, Institutional, and Multi-Storey Building Permit
      • Residential Building Permit
        • Model Plan Review Program
        • Saskatoon Water Pre-Review Application
      • Permit Forms & Applications
      • Zoning and Land Use
      • Demolition
      • Plumbing
      • Building Permit Inspections
      • 2020 National Codes
      • ePermitting Planning Approvals
    • Land Development
      • Single-Unit
      • Multi-Unit
      • Industrial
      • Commercial & Mixed Use
    • Major Projects
      • Upcoming Projects
        • Downtown Event & Entertainment District
          • Journey to the District
          • Designing Reasons to Come & Connections to Get There
          • Project Benefits
          • Project Governance and Advisory Group
          • Downtown Saskatoon
          • Resources
      • Current Projects
      • Past Projects
        • Interchange Projects
          • Boychuk Drive/Highway 16 Interchange Project
          • McOrmond Drive and College Drive Interchange
        • Northeast Reservoir
        • Spadina Lift Station
        • Water Treatment Plant Perimeter Security Fence
        • Water Treatment Plant Expansion
        • WintercityYXE
          • WintercityYXE Strategy
          • How to Winter Resources
          • WintercityYXE Grants
          • Winter in the City
      • Public Private Partnerships
    • Doing Business with the City
      • New Payment and Purchasing Guidelines
      • Bid & Vendor Information
      • Procurement Policy
      • Diverse Procurement Practices
        • Indigenous Procurement Protocol
      • Non-Standard Procurement (Sole Source)
      • Product Submissions
  • Environmental
    Initiatives
    • Community Resources
      • Environmental Commitments
      • Environmental Grant
      • Business and Non-Profit Resources
        • Contractor Environmental Guidelines
        • Brownfield Incentive Pilot Program
      • Resident Resources
      • School Resources
      • Greening City Operations
      • Get Connected
      • Rain Barrel Rebates
    • Climate Change
      • Climate Change in Saskatoon
      • Climate Budget
      • Climate Adaptation
      • Targets and Progress
    • Energy & Water
      • Home Energy Tools & Resources
      • Home Energy Loan Program (HELP)
        • HELP Contractor Resources
        • HELP Equipment Specifications
        • HELP Initial Online Application
        • HELP Application Funding Requests
        • HELP Installment Request
        • HELP Project Completion
        • HELP Deposit Request
      • Electric Vehicles
      • Multi Unit Buildings & EVs
      • Civic ZEV Initiatives
      • Community Water Conservation
      • Renewable Energy & Efficient Civic Buildings
    • Solid Waste
      • Solid Waste Reduction & Diversion Plan
      • ICI Waste Diversion
      • Mattress Recycling
      • Waste Data & Studies
      • Public Space & Event Waste Diversion Project
    • Environmental Dashboard
      • Climate, Energy and Buildings
        • City of Saskatoon Alternative Energy Initiatives
        • City of Saskatoon Greenhouse Gas Emissions
        • Community Greenhouse Gas Emissions
        • Community Solar Power Generation
        • High Performance Buildings
        • Energy Poverty / Utility Affordability
      • Water
        • Water Quality
        • Water Use
        • Peak Demand for Water
        • City of Saskatoon Water Use
      • Transportation
        • Transportation Choices
        • City of Saskatoon Vehicle Fuel Use
        • Electric Vehicles
      • Waste
        • Landfill Airspace
        • Waste Diversion
        • Curbside Waste Composition
        • Curbside Waste Generation
    • Green Network
      • Rainfall Report
      • Groundwater
      • Natural Areas
      • Parks and Green Space
      • Urban Forest
      • Natural Infrastructure Fund
  • City
    Hall
    • Careers at the City
      • City Careers
      • Build a Career, Shape a City
        • Diversity, Equity & Inclusion
          • Accessible Application Process
          • Fair and Unbiased Hiring Process
        • Collective Agreements
        • City Employee Benefit Programs
        • Respectful Workplace
      • Hiring Process
      • Summer and Seasonal Employment
      • Why the City of Saskatoon?
      • Water Training Program for Indigenous Persons
      • What We Are Proud Of
    • Our Strategic Plan & Performance
      • Strategic Plan
      • Service, Savings & Sustainability Report (SSS)
      • City Manager's Message
      • Triple Bottom Line
      • Civic Services Surveys
    • Send Comments & Concerns to the City
      • Service Saskatoon
        • Citizen Input
        • Staffing
        • Systems
        • Standards
      • Compliment the City
      • Contact Us
      • Legal Claim Information
      • Access to Information
        • Publicly Available Records
        • Personal Information Request
        • General Information Request
        • External Disclosure Request - Government Entities
        • Costs
        • Frequently Asked Questions
    • Civic Meetings & Events
      • Annual Civic Pancake Breakfast
      • Civic Meetings & Events Calendar
        • Events Archive
      • Civic Square
      • Flag Raising, Lighting Display and Proclamations
        • Approved Requests
        • Appeals
    • Mayor & City Councillors
      • City Councillors & Wards
        • Ward 1 - Kathryn MacDonald
        • Ward 2 - Senos Timon
        • Ward 3 - Robert Pearce
        • Ward 4 - Troy Davies
        • Ward 5 - Randy Donauer
        • Ward 6 - Jasmin Parker
        • Ward 7 - Holly Kelleher
        • Ward 8 - Scott Ford
        • Ward 9 - Bev Dubois
        • Ward 10 - Zach Jeffries
      • Mayor's Office
        • Invite the Mayor
        • Contact the Mayor
        • Anniversary or Birthday Messages
        • Program Greetings
      • 9 Strategic Priority Areas
      • Council Member Compensation
      • Council Member Expenses
      • Independent Office of the City Auditor
        • Audit Plans
        • Audit Reports
      • Integrity Commissioner - Code of Ethical Conduct
    • City Council, Boards & Committees
      • Live Video
      • Agendas, Minutes & Video
        • Council Archives
        • Committee Archives
          • Growth Plan Summit
      • Boards & Committees
      • Interacting with Council & Committees
        • Council Chamber Visitor Screening
      • Public Notices
    • City Bylaws & Policies
      • Bylaws
      • Policies
      • Report a Bylaw Concern
      • Report a Property Maintenance Concern
    • Budget & Finances
      • Multi Year Budget
        • Budget Building Blocks
      • Our Performance & Finance Related Reports
        • Financial Performance & Credit Rating
        • Finance Related Reports
      • Past Budgets
      • Finance Updates
        • Canada Community Building Fund
      • Corporate Asset Management
    • Elections Saskatoon
      • Information for Voters
      • Information for Candidates
      • Ward Boundary Changes
      • Reports
      • History & Results
        • Past Elections
Menu

1821 Jackson Avenue

Learn the details of the applicant's proposal and development review process for 1821 Jackson Ave.
  • Latest Service Alert
  • Latest News Release
  • Checking for updates...
  • Checking for updates...

Realtime Feed Loading...

City of Saskatoon
  1. Engagement Projects
  2. 1821 Jackson Avenue

Engage

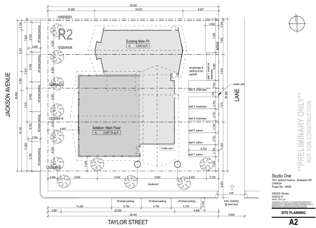
BLDG Studio Inc. on behalf of Studio One RP Dance has applied for Discretionary Use approval to expand a Commercial School at 1821 Jackson Ave in the Holliston neighbourhood. This site is zoned R2 - Low Density Residential District 2 under the Zoning Bylaw, Bylaw No. 9990, 2024 (Zoning Bylaw).

On August 2, 1994, City Council issued Discretionary Use approval to operate a Private Dance School within the existing 3,240 ft2 building which includes two (2) studios on the main floor and two (2) studios in the basement with related office and changing facilities. 

Subject to Discretionary Use approval, the new application is proposing a 2,687 ft2 addition to the south-west portion of the building which will add one (1) studio on the main floor and one (1) studio in the basement. 

A capacity of 61 students and 6 staff members is currently being proposed. Parking and loading needs will be assessed during the review of the Discretionary Use and a minimum number of parking spaces may be required based on the proposed use, location, capacities, and parking plan.

Location Map

Site Plan

Site Plan:


 

Background

What is a Discretionary Use?

All property in the City of Saskatoon is assigned a zoning designation. Within each zoning designation, specific land uses are either permitted, prohibited, or discretionary. A Discretionary Use is a land use that is generally consistent with the permitted uses in a zoning district. As per Section 4.7.2 of the Zoning Bylaw, a Discretionary Use may be allowed either at the discretion of City Council or City Administration. Either approving authority can approve, approve with conditions, or deny a Discretionary Use application.

The approving authority for a Commercial School in the R2 District is City Council.

The Planning and Development Department evaluates Discretionary Use applications on a case-by-case basis considering the site itself, as well as the surrounding context including nearby land uses. A Discretionary Use approval is applied to a specific site, not the applicant. Any change in size or intensity of the use approved would require a new Discretionary Use application.

What is a Commercial School?

The Zoning Bylaw defines a Commercial School as a facility for training and instruction in a talent, skill or hobby and may include music, dance or similar school.

What is the R2 Zoning District?

The purpose of the R2 district is to provide for residential development in the form of one- to four-unit dwellings as well as related community uses.

 
 
 

Process

Process for Reviewing a Discretionary Use Application

When a Discretionary Use application is received by the Planning and Development Department, it is circulated to internal Civic Departments to identify conformance or conflict with the Official Community Plan, the Zoning Bylaw, and any other applicable policies and regulations. Departments that review the application include Planning and Development, Transportation & Construction, Environment & Utilities, Fire & Protective Services, and Building Standards.

Once the application has been reviewed by internal Civic Departments, public consultation on the application is undertaken. Registered property owners typically within 150 metres of the subject site and the Ward Councillor are notified of the proposed Discretionary Use application as per the City’s Public Notice Policy. When considered necessary, a public information meeting may be held to provide information to area residents on the Discretionary Use application, answer questions, and receive feedback.

Process for Approving a Discretionary Use Application

Delegated to City Administration - Applications delegated to City Administration do not require a decision from City Council at a Public Hearing. Following the review process noted above, City Administration will consider the information collected from the internal review and public consultation processes and the application may then be approved, approved with conditions, or denied.

Delegated to City Council - Applications delegated to City Council require a decision during a Public Hearing. Following the review process noted above, City Administration will prepare a report for City Council's consideration containing information collected from the internal review and public consultation. Notice of the Public Hearing will be mailed to property owners within approximately 150m of the subject site and will contain information on the Public Hearing including the date, time, and instructions on how to submit a letter or request to speak at the Public Hearing. During the Public Hearing, City Council will consider the report and may either approve, approve with conditions, or deny the application.

The approving authority for a Commercial School in the R2 District is City Council.

Contact Us

Tyler Kopp
306.986.3639
Email Us

Timeline

  • February 13, 2026 to March 6, 2026

    Public Engagement
  • To be determined

    Consideration by the Municipal Planning Commission
  • To be determined

    Consideration by City Council at a Public Hearing

Related Pages

Zoning Bylaw (Digital Version)
Discretionary Use Information Page

Connect With Us Online

Visit Contact Page

  • Twitter
  • Facebook
  • YouTube
  • Instagram
  • Linkedin

City Hall

222 3rd Ave North
Saskatoon, SK
Canada
S7K 0J5

Hours Mon - Fri: 8am - 5pmSat - Sun: Closed
Stat Holidays: Closed

Phone Us

Service Saskatoon
Customer Care Centre
Available 24/7
306-975-2476
Inquiries: Utilities, Property Taxes, and Parking
Mon - Fri: 8:30am - 4:30pm
306-975-2400
Saskatoon Light & Power
Available 24/7
306-975-2414
Saskatoon Police
306-975-8300
Saskatoon Transit
306-975-3100

Can't find the number you are looking for?
Try our directory

Quick Links

  • News Releases
  • City Statements
  • Public Notices
  • Events
  • Service Alerts
  • Interactive Maps

Home

© Copyright 2026 City of Saskatoon

  • Privacy Statement
  • MyCity