Engage
D&S Homes Inc. has applied for Discretionary Use approval to operate a Residential Care Home – type II in the Queen Elizabeth neighbourhood. This site is zoned R2 – Low Density Residential District 2 under the Zoning Bylaw, Bylaw No. 9990, 2024 (Zoning Bylaw).
The Zoning Bylaw defines a residential care home as a licensed or approved group care home governed by provincial regulations that provides, in a residential setting, 24-hour care of persons in need of personal services, supervision or assistance essential for sustaining the activities of daily living or for the protection of the individual. A residential care home – type II means a residential care home in which the number of residents, excluding staff, is more than five and not more than 15.
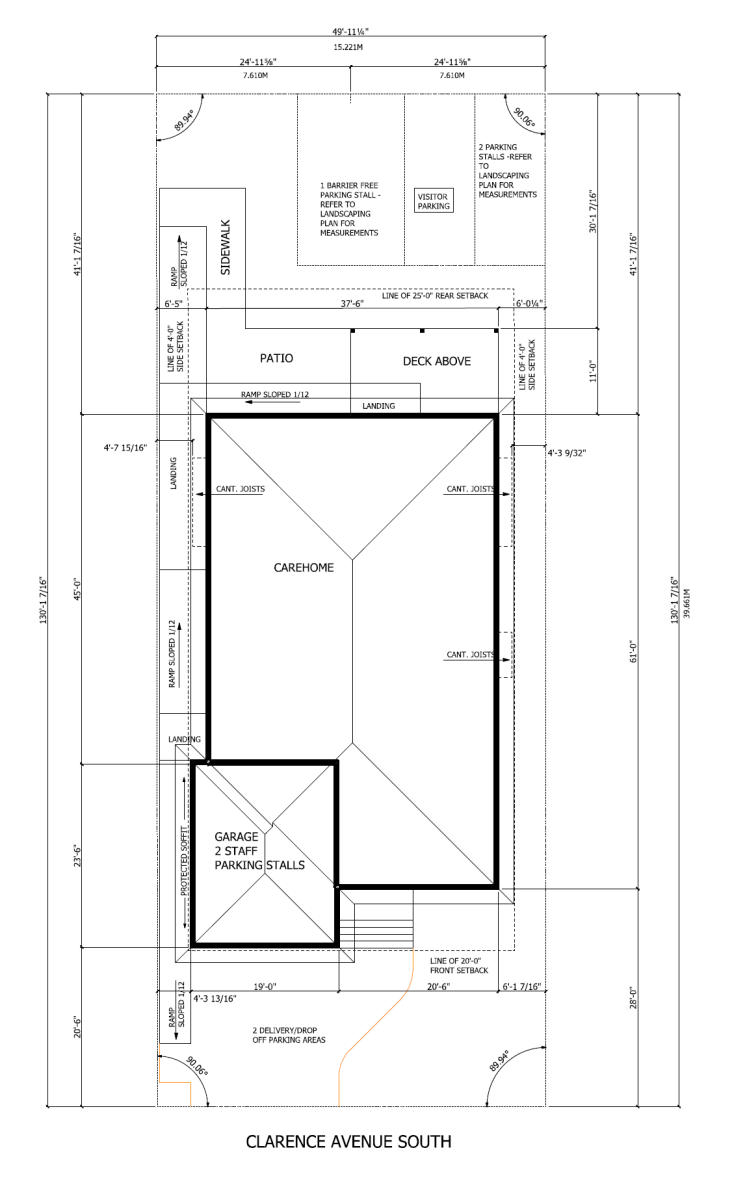
The site is currently developed as a one-unit dwelling. If this Discretionary Use application were to be approved, the applicant is proposing to demolish the existing structure and rebuild as indicated in the drawings for this application.
The application was previously submitted requesting to develop a Residential Care Home – type II for up to 15 residents and 1 staff member. Following the initial public engagement, the applicant has revised the proposed capacity and is now proposing to accommodate a maximum of fifteen (15) residents under care and two (2) employees at any given time.
Parking and loading needs will be assessed during the review of the Discretionary Use and a minimum number of parking spaces may be required based on the proposed use, location, and parking plan.
Location Map

