Skip to main content
Home
Create Account Sign In
Engage
Contact Us
Search

Main Menu

  • Services for
    Residents
    • Connect with your City
      • Engage with your City
      • Request Services Online
      • Contact Us on our Website
      • Contact Us on Social Media
      • Contact Us by Phone
      • Organizational Charts
      • Free public WiFi pilot project
      • News Subscriptions
      • Open Data
      • Canada Post Service Disruption
    • Housing & Property
      • City-Owned Trees
        • Tree Maintenance & Inspections
        • Tree Planting
          • Request a Boulevard Tree
          • Plant a Tree on your Property
          • Community Tree Planting Pilot Program
        • Tree Protection Requirements
          • Tree Permits
          • Tree Protection FAQs
        • Tree Diseases & Pests
          • Dutch Elm Disease
        • Tree Care
        • Industrial Tree Planting
      • Boarders
      • Yard & Garden
        • Yard & Garden Pests
          • Insect Biocontrols
          • Mosquito Counts
        • Public Space Gardening
        • Garage and Yard Sales
        • Recreation Vehicles
        • Residential Fences
        • Property Maintenance & Waste Management Appeals
        • Weed Control
        • Be Pesticide Free
        • Healthy Yards
      • Graffiti Reduction
      • Affordable Housing
        • Affordable Housing Program and Resources
        • Affordable Housing Incentives
        • Rapid Housing Initiative
      • Point-in-Time Count
      • Good Neighbour Guide
        • Security Camera Usage
    • Property Tax & Assessment
      • Assessment Appeals
      • Assessment
      • Property Tax
        • Property Assessment & Tax Tool
          • Terms of Use
      • Tax Payment
        • Seniors Property Tax Deferral Program
        • Tax Instalment Payment Plan Service (TIPPS)
      • Request For Information
      • Municipal Tax Ratio Policy
    • Homebuilding, Renovations & Improvements
      • Getting Started
        • Building Permits
        • Building Permit Fees
        • Building Permit Timelines
        • Bylaws and Policies
      • Project Guides
        • Decks
        • Garages
        • Home Renovation, Addition or New Construction
        • Demolition
        • Secondary Suites
          • Legalizing Existing Suites
        • Garden and Garage Suites
        • Swimming Pools
        • Homeowner Plumbing Permit
        • CMHC Design Catalogue
      • Zoning and Land Use
      • Permit Forms & Applications
      • Building Permit Inspections
      • Building & Property Information
        • Civic Addressing
        • Permit Data & Reports
      • 2020 National Codes
      • Renovation Resources
    • Power, Water & Sewer
      • My Utility Account
        • Account Summary
        • Payment Information
        • Connect or Disconnect Service
        • Reading Your Meter
          • Submit Your Meter Reading Online
        • eBill Signup
          • Switch to eBill!
        • Bill History
        • Consumption & Charges
        • Equalized Payment Plan
        • Payments & Credits
        • My Carts
        • Waste Utility Subsidy
      • MyProperty - Coming September 2026
      • Utility Rates
        • Electrical Rates
          • Electric Heat Relief Rebate
        • Waste Rates
        • Water Rates
      • SmartUTIL
        • Be Water Wise
        • Be Energy Wise
      • Drinking Water
        • Drinking Water Advisories
          • DWA Dashboard
        • Water Quality Characteristics
        • Water Treatment Plant
        • Cross Connection Control
          • Cross Connection Prevention
        • Licensed Backflow Testers
        • Water Meters
          • Water Meter - AMI Project
          • Water Meter Updates
        • Water Workers Week
        • Lead Water Pipes
        • Water Main Breaks & Repairs
          • Water Main Replacement Program
        • Water & Wastewater Utility Rates
        • Your Water Meter
        • Frozen Pipes
        • Water Service for Businesses
      • Saskatoon Light & Power
        • Customer Care
          • Your Meter
        • Outages & Safety
          • Outages
          • Electrical Safety
        • Street Lighting
        • Services & Projects
          • Underground Line Locates
          • New or Upgraded Electrical Service
          • School Tours
          • Tree Trimming
          • Work With Us
        • Sustainable Electricity
          • Landfill Gas Collection & Power Generation System
          • Customer Self-Generation Programs
          • Dundonald Avenue Solar Farm
          • Solar Power Demonstration Site
          • Renewable Subscription Service Program
        • About Us
        • Electrical Worker Week
      • Wastewater
        • Lift Stations
        • Sanitary Sewer
          • Sewer Use Bylaw
          • Sewer Backup
        • Wastewater Treatment Plant
          • Nutrient Recovery Facility
          • Digester & Heating Upgrades
        • Waste Hauler Disposal Facilities
        • Biosolids Pipeline Corridor Project
        • Prevent Irritable Sewer Syndrome
      • Underground Line Locates
      • Storm Water
        • Storm Water System
          • Ditch Crossings and Culvert Guidelines
          • Invasive Species
          • Storm Ponds
          • Storm Water and Flood Protection Charges
        • Flood Control Strategy
          • 24th Street Storm Sewer Project
          • USask Dry Storm Pond
        • Home Flood Protection
          • Protective Plumbing
          • Spring Snowmelt
        • Storm Water Credit Program
        • Storm Water Management Utility Exemption
      • Landlord-Tenant Agreement
    • Waste & Recycling
      • Collection Calendar
      • Garbage
        • Curbside Garbage (Black Cart)
        • Multi-Unit Garbage
        • Material Recovery Centre & Landfill
        • Commercial Garbage Collection
      • Recycling
        • Curbside Recycling
        • Multi-Unit Recycling
        • Recycling Depots
        • Household Glass Program
        • Business Recycling
        • Cardboard Recycling
        • Recycling Education
      • Organics (Food & Yard Waste)
        • Green Cart Program
        • Compost Depot
        • Home Composting
        • Christmas Tree Composting
        • Business Organic Waste
        • Multi Unit Organics
        • Organics Education
        • Organics Processing Facility
      • Waste Wizard
        • BizWiz
      • Cart Care
      • Household Hazardous Waste
      • Illegal Dumping
      • Community Programs
        • Assisted Waste Collections
        • Curbside Swap
          • List Your Curbside Swap
          • View Curbside Listings
        • Newcomer and EAL Recycling and Composting Workshops
        • School Education
        • Waste Reduction Wagon
      • Waste Reduction & Diversion
    • Fire & Emergency
      • About SFD
        • Fire Stations
          • Fire Station No. 10
          • Regional Training Facility
          • Relocating Fire Station No. 5: Improving Community Response
        • Master Plan
        • SFD Strategic Plan
        • Year in Review
      • Education & Awareness
        • Life/Fire Safety Education
          • Carbon Monoxide
          • Cooking Safety
          • Emergency Vehicles & Rules of the Road
          • Shelter Spaces
          • Encampments
          • Fire Extinguishers
          • Fire Hydrants
          • Fire Pits
          • Fireworks
          • Home Escape Plan
          • Lithium-Ion Batteries
          • Needles & Sharps
          • Outdoor Grilling Safety
          • River & Water Safety
          • Shelter in Place
          • Smoke Alarms
          • Smoking Materials
        • Safety & Prevention Programs
          • Steps to Safety
          • Steps to Safety Training
      • Response & Recovery
        • Emergency Rescue Operations
        • Fire Recovery & Support
      • Inspections & Investigations
        • Fire Inspections
        • Fire Investigations
        • Plan Reviews
        • Permits
      • Emergency Management
        • notifynow
        • Emergency Preparedness
        • Extreme Cold Weather Emergency Response Plan
        • Extreme Heat
        • Wildfire Evacuations
        • Report a Spill
        • Command 9: Mobile Command Unit
        • Emergency Phone Numbers
      • Fire Community Support
      • Event & Presentation Requests
      • Recruitment
        • Firefighter-Paramedic Recruitment Roadmap
        • Firefighter Candidate Information Session
      • News & Information
    • Pet Licensing & Animal Services
      • Pet Licensing
        • Pet License Vendors
      • Subsidized Spay & Neuter Program
      • Dog Parks
        • Behaviour Awareness Training Sessions
        • Commercial Dog Walker
        • Dog Day of Summer
      • Enforcement
        • Paying your Animal Control Notice of Violation
        • Dangerous Animals
        • Reporting Nuisance Barking or Howling
        • Reporting an Animal at Large
      • Bite Prevention
      • Cats
      • Wildlife Management
        • Coyotes
      • Injured or Deceased Animals
      • Pet Wellness Guide
  • Moving
    Around
    • Accessibility
      • Accessibility Rights
      • Accessible Building Standards
      • Accessibility Action Plan
    • Transit
      • Link - Saskatoon's Rapid Transit
        • Link - Construction Updates
        • Link - 1st Avenue
        • Link - Project Background
        • Link - Resources
          • Link - College Drive Design and Open Houses
        • Link - Working Together
        • Link - Our Brand Story
        • Link - Public Art Program
        • Link - News
      • Open Data From Saskatoon Transit
    • Cycling
      • BYXE Week
      • Cycling Plans & Projects
      • Cycling Programs
      • Cycling Safety
        • Cycling Guide and Tips
        • BYXE Break
        • Rider Safety
        • Additional Cycling Resources
        • Winter Cycling Tips
      • Electric Scooters (E-scooters)
    • Driving & Roadways
      • Driving
        • Safe Driving
        • School & Playground Zones
        • Photo Speed Enforcement
        • Red Light Cameras
        • Traffic Safety Action Plan
        • Winter Driving
        • Slow to 30 in Work Zones
        • Destination Street Signs
          • Tourism Destination Pictograms
        • Neighbourhood Bikeways 30 km/h Speed Limit
        • Respect Work Zones
      • Managing Traffic
        • Transportation Master Plan
        • Traffic Noise
        • Neighbourhood Traffic
          • Neighbourhood Traffic Reviews
          • Traffic Calming
        • Merging Guidelines
        • Traffic Studies
        • Traffic Permits
          • Right-of-Way Permit
          • Truck Permits
          • Curb, Sidewalk and Ditch Crossing Permits
          • Traffic Detour Request
        • Intersections
      • Road Maintenance & Repair
        • Back Lanes
        • Construction
          • College Drive and Related Construction Projects
        • Dust Control Testing
        • Pavement Marking
        • Pothole & Utility Cut Repairs
        • Road Treatments
        • Street Sweeping
          • Leaves
      • StreetSmarts
      • Traffic Bylaw
      • Winter Road Maintenance
        • Emergency Response Plan
        • School Zone Snow Removal
        • Sidewalk Clearing
        • Snow and Ice Report
        • Snow Storage Sites
        • Catch Basin Drainage
    • Bridges
      • The History of our Bridges
      • Bridge Maintenance
      • Chief Mistawasis Bridge and Traffic Bridge
    • Walking
      • Sidewalk Preservation
      • Walking Routes & Maps
      • Winter Walking & Snow Clearing
      • Walkways
      • Sidewalk Planning
      • Active Transportation
        • Active Transportation Advisory Group
      • Pedestrian Safety
    • Parking
      • Public Pay Parking
      • Parking Tickets
        • Pay a Ticket
        • Questions about a Ticket?
      • Parking Programs & Permits
        • Accessible Parking
          • Accessible Parking Permit
        • Residential Parking Program
        • Temporary Reserved Parking Program
        • Loading Zones for Business
        • Veteran Parking
      • Vehicle Seizures
      • Understanding Parking in Saskatoon
  • Parks, Recreation
    & Attractions
    • Recreational Facilities & Sport Fields
      • Leisure Centres
        • Admission Rates & Options
          • Corporate LeisureCard
        • Cosmo Civic Centre
        • Harry Bailey Aquatic Centre
        • Lakewood Civic Centre
        • Lawson Civic Centre
        • Saskatoon Field House
        • Shaw Centre
        • Terry Fox Track
        • Swimming Pools
      • Golf Courses
      • Gordon Howe Campground
      • Outdoor Pools
      • Outdoor Tennis / Pickleball Courts
      • Summer Play Programs (Paddling Pools & Spray Pads)
      • Skateboard Sites
      • Sport Fields
      • Youth Centres
      • Skating Rinks
        • Indoor Rinks
        • Outdoor Rinks
        • Skating Oval
      • Toboggan Hills
      • Winter Trails
      • Recreation Facility Rentals
    • Recreational Programs & Activities
      • Drop-in Programs
      • Fit Over 50 Programs
      • Leisure Online
      • Leisure Guide
      • Special Needs Services
      • Leisure Access Program
      • The First Step Program
      • Become a Lifeguard
      • Recreation & Parks Master Plan
      • Metawetan Programs
      • Become a Fitness Instructor
      • Summer in Saskatoon - Find Your Fun!
      • Become a Recreation Leader
      • Low Cost / No Cost Opportunities
      • Registered Programs
      • Swimming Lessons
    • Events & Attractions
      • Event Planning
      • Nutrien Playland
        • Playland Parties
        • Rental Information
      • Saskatoon Forestry Farm Park & Zoo
        • Saskatoon Zoo
          • Zoo Animals
          • Affinity Learning Centre
          • Kinsmen Express Train
          • Prairie Butterfly House
          • Small Mammal House
          • Zoo Gift Shop
          • Zoo Season Pass
          • Accessible Pier
          • Orano Fun Zone Playground
          • Zoo Café
          • Conservation Research & Education
        • Forestry Farm Park
          • Fishing Pond
          • Forestry Farm House
          • McDonald's Natural Place to Play Playground
          • Secret Gardens
        • Rental Facilities & Information
          • Ball Diamond & Cricket Pitch
          • Forestry Farm House (Superintendents Residence)
          • Gazebo Picnic Site
          • Hall
          • Lions Event Pavilion
          • Wedding Garden
        • Partner Organizations
      • Conservatory
      • Farmers' Market Building
    • Parks
      • Park Locations & Amenities
      • Park Etiquette
        • Smoke-Free Outdoor Public Places
      • Park Bookings & Permits
        • Park Access Permits
        • Outdoor Special Events & Festivals
          • Special Event FAQs
          • Special Event Forms & Permits
          • Services & Fees
          • Submission Timelines
        • Use of Drones
        • Seasonal Commercial Enterprise in Parks
      • Park Maintenance
        • Prescribed Fires
      • Park Upgrades & Development
      • Greenhouse
      • Woodlawn Cemetery
        • Cemetery Plots
        • Memorialization Options
        • Vault Options
        • Release of Cremated Remains
  • Community, Culture
    & Heritage
    • Accessibility Plan
      • Our Accessibility Plan
      • The Accessible Saskatchewan Act (Bill 103)
    • Arts & Grants
      • Public Art
      • Culture Plan
      • Cultural Mapping
      • Grants
      • Arts & Culture Activities
    • New to Saskatoon
      • Life in Saskatoon
      • Finding a Job in Saskatoon
      • Education in Saskatoon
      • Welcoming Immigrants & Refugees
        • Community Connections for Newcomers
        • Resources & Supports for Newcomer Service Providers
    • Neighbourhoods & Community Associations
      • Community Associations
        • Community Association Volunteers
      • Block Parties
      • Naming Saskatoon
      • Recreational Use of Stormwater Ponds
    • Cultural Diversity
      • Indigenous Initiatives
        • About Indigenous Initiatives
        • Treaty 6 & Métis Homeland
          • History of First Nations and Saskatoon
          • History of the Métis in Saskatoon
        • Annual Events
        • Reconciliation Visual Identity
        • Indigenous Women & Girls and Two-Spirit People
        • Reconciliation Saskatoon
        • Indigenous Technical Advisory Group
        • Community Resources
        • Chief Mistawasis Bridge
        • TRC Calls to Action Inspired Bus Shelter Art
        • Other Initiatives & Updates
      • Living in Harmony Awards
      • Race Relations: City Policy
      • Anti-Racism Education
      • Race Relations Month
      • DEIAC Sponsorship Program
      • Have Tea with Me: Promoting a culture of inclusion
      • Place Naming
      • Reconciliation and DEI
    • Heritage Properties & Programs
      • Discover Your Property's History
      • Municipal Heritage Property Designation
      • Heritage Plan, Policy & Program Review
      • Doors Open Saskatoon
      • Facade Conservation & Enhancement Grant Program
      • Heritage Register
    • Saskatoon History & Archives
      • History
      • Archives
      • Woodlawn Cemetery History
      • Nutana Cemetery (Pioneer Cemetery)
    • Community Outreach and Supports
      • Know Who to Call
      • Saskatoon’s Affordable Housing Strategy
      • Public Washrooms and 24/7 Navigation Hub
      • City of Saskatoon’s Community Safety & Well-Being Response
      • Related Council Reports & Information
      • Encampments
      • Fire Community & Support
      • Overdose Outreach Team
      • Saskatoon Extreme Cold Weather Emergency Response Plan
      • Saskatoon Extreme Heat & Air Quality Emergency Response Plan
      • Shelter Spaces
  • Business
    & Development
    • Economic Profile
      • Economic Profile Trends
      • Business Statistics & Publications
    • Planning
      • Growth Plans
        • Official Community Plan
        • Plan for Growth
          • Transit Plan
          • Corridor Planning
        • Regional Planning
          • Saskatoon North Partnership for Growth (P4G)
          • Boundary Alteration
        • Sector Plans
        • Neighbourhood Concept Plans
      • A Vibrant Downtown
        • River Landing
          • Connected to the Community
          • A Dynamic Mix of Land Uses
          • A place for celebration
          • Landmark features
      • Programs & Projects
        • First Nations and Métis Lands and Relationships
          • Honouring Treaty
          • Urban Reserves and Land Holdings
          • First Nation Community Profiles
          • First Nations and Métis Governance and Communications
        • Urban Design
          • Banner Program
        • Neighbourhood Planning
          • Local Area Planning
          • Neighbourhood Safety
          • CPTED Review Committee
          • Vacant Lot & Adaptive Reuse Strategy
          • South Caswell Redevelopment
          • Imagine Idylwyld
          • Pleasant Hill Village
        • Housing Action Plan
          • Development of City-Owned Properties
      • Planning Publications
      • Maps
        • Zoning Address Map
        • Address Map
        • Open Data Catalogue
    • Business Licenses
      • Start a Business
        • Specialized Requirements
      • Business Licence Categories
        • Commercial
        • Home Based
        • Non-resident Businesses
        • Adult Services
        • Cannabis
        • Day Cares
        • Mobile Food Truck
        • Motor Vehicle Sales Establishments
        • Mobile Vending Carts
        • Residential Care Homes
        • Short-Term Accommodations
        • Sidewalk Cafes & Parking Patios
        • Taxis & Transportation Network Companies
      • Business Licence Online
      • Saskatoon Appeal Board
    • Development Regulation
      • Zoning and Land Use
      • Developers & Homebuilders
        • Condominium Approvals
        • Neighbourhood Infill Development
        • Minor Variances
        • Zoning Violations
        • Land Use Applications
        • Development Appeals
        • Rezoning Property
        • Subdividing Property
        • Discretionary Use
        • Wetland Policy
        • Riverbank Overlay District
          • Available Geotechnical Information
        • Landscaping Requirements
      • Lot Drainage
        • Residential Property Lot Grading Guidelines
        • Lot Grading Plans
        • Residential Lot Grading Styles
        • Lot Grading Requirements
        • Infill Site Grading
        • Commercial & Multi-Family Site Grading
        • Site Grading Inspections
      • Specifications & Standards
        • Licensed Water & Sewer Contractors
        • Hydrant Flow and Short Service Connections Inspection Forms
        • Specifications
        • Design & Development Standards Manual
        • Drawings
        • Signs
      • Asbestos Awareness
        • Asbestos Registry
        • Asbestos Management Program
    • Building, Development & Construction
      • Industrial, Commercial, Institutional, and Multi-Storey Building Permit
      • Residential Building Permit
        • Model Plan Review Program
        • Saskatoon Water Pre-Review Application
      • Permit Forms & Applications
      • Zoning and Land Use
      • Demolition
      • Plumbing
      • Building Permit Inspections
      • 2020 National Codes
      • ePermitting Planning Approvals
    • Land Development
      • Single-Unit
      • Multi-Unit
      • Industrial
      • Commercial & Mixed Use
    • Major Projects
      • Upcoming Projects
        • Downtown Event & Entertainment District
          • Journey to the District
          • Designing Reasons to Come & Connections to Get There
          • Project Benefits
          • Project Governance and Advisory Group
          • Downtown Saskatoon
          • Resources
      • Current Projects
      • Past Projects
        • Interchange Projects
          • Boychuk Drive/Highway 16 Interchange Project
          • McOrmond Drive and College Drive Interchange
        • Northeast Reservoir
        • Spadina Lift Station
        • Water Treatment Plant Perimeter Security Fence
        • Water Treatment Plant Expansion
        • WintercityYXE
          • WintercityYXE Strategy
          • How to Winter Resources
          • WintercityYXE Grants
          • Winter in the City
      • Public Private Partnerships
    • Doing Business with the City
      • New Payment and Purchasing Guidelines
      • Bid & Vendor Information
      • Procurement Policy
      • Diverse Procurement Practices
        • Indigenous Procurement Protocol
      • Non-Standard Procurement (Sole Source)
      • Product Submissions
  • Environmental
    Initiatives
    • Community Resources
      • Environmental Commitments
      • Environmental Grant
      • Business and Non-Profit Resources
        • Contractor Environmental Guidelines
        • Brownfield Incentive Pilot Program
      • Resident Resources
      • School Resources
      • Greening City Operations
      • Get Connected
      • Rain Barrel Rebates
    • Climate Change
      • Climate Change in Saskatoon
      • Climate Budget
      • Climate Adaptation
      • Targets and Progress
    • Energy & Water
      • Home Energy Tools & Resources
      • Home Energy Loan Program (HELP)
        • HELP Contractor Resources
        • HELP Equipment Specifications
        • HELP Initial Online Application
        • HELP Application Funding Requests
        • HELP Installment Request
        • HELP Project Completion
        • HELP Deposit Request
      • Electric Vehicles
      • Multi Unit Buildings & EVs
      • Civic ZEV Initiatives
      • Community Water Conservation
      • Renewable Energy & Efficient Civic Buildings
    • Solid Waste
      • Solid Waste Reduction & Diversion Plan
      • ICI Waste Diversion
      • Mattress Recycling
      • Waste Data & Studies
      • Public Space & Event Waste Diversion Project
    • Environmental Dashboard
      • Climate, Energy and Buildings
        • City of Saskatoon Alternative Energy Initiatives
        • City of Saskatoon Greenhouse Gas Emissions
        • Community Greenhouse Gas Emissions
        • Community Solar Power Generation
        • High Performance Buildings
        • Energy Poverty / Utility Affordability
      • Water
        • Water Quality
        • Water Use
        • Peak Demand for Water
        • City of Saskatoon Water Use
      • Transportation
        • Transportation Choices
        • City of Saskatoon Vehicle Fuel Use
        • Electric Vehicles
      • Waste
        • Landfill Airspace
        • Waste Diversion
        • Curbside Waste Composition
        • Curbside Waste Generation
    • Green Network
      • Rainfall Report
      • Groundwater
      • Natural Areas
      • Parks and Green Space
      • Urban Forest
      • Natural Infrastructure Fund
  • City
    Hall
    • Careers at the City
      • City Careers
      • Build a Career, Shape a City
        • Diversity, Equity & Inclusion
          • Accessible Application Process
          • Fair and Unbiased Hiring Process
        • Collective Agreements
        • City Employee Benefit Programs
        • Respectful Workplace
      • Hiring Process
      • Summer and Seasonal Employment
      • Why the City of Saskatoon?
      • Water Training Program for Indigenous Persons
      • What We Are Proud Of
    • Our Strategic Plan & Performance
      • Strategic Plan
      • Service, Savings & Sustainability Report (SSS)
      • City Manager's Message
      • Triple Bottom Line
      • Civic Services Surveys
    • Send Comments & Concerns to the City
      • Service Saskatoon
        • Citizen Input
        • Staffing
        • Systems
        • Standards
      • Compliment the City
      • Contact Us
      • Legal Claim Information
      • Access to Information
        • Publicly Available Records
        • Personal Information Request
        • General Information Request
        • External Disclosure Request - Government Entities
        • Costs
        • Frequently Asked Questions
    • Civic Meetings & Events
      • Annual Civic Pancake Breakfast
      • Civic Meetings & Events Calendar
        • Events Archive
      • Civic Square
      • Flag Raising, Lighting Display and Proclamations
        • Approved Requests
        • Appeals
    • Mayor & City Councillors
      • City Councillors & Wards
        • Ward 1 - Kathryn MacDonald
        • Ward 2 - Senos Timon
        • Ward 3 - Robert Pearce
        • Ward 4 - Troy Davies
        • Ward 5 - Randy Donauer
        • Ward 6 - Jasmin Parker
        • Ward 7 - Holly Kelleher
        • Ward 8 - Scott Ford
        • Ward 9 - Bev Dubois
        • Ward 10 - Zach Jeffries
      • Mayor's Office
        • Invite the Mayor
        • Contact the Mayor
        • Anniversary or Birthday Messages
        • Program Greetings
      • 9 Strategic Priority Areas
      • Council Member Compensation
      • Council Member Expenses
      • Independent Office of the City Auditor
        • Audit Plans
        • Audit Reports
      • Integrity Commissioner - Code of Ethical Conduct
    • City Council, Boards & Committees
      • Live Video
      • Agendas, Minutes & Video
        • Council Archives
        • Committee Archives
          • Growth Plan Summit
      • Boards & Committees
      • Interacting with Council & Committees
        • Council Chamber Visitor Screening
      • Public Notices
    • City Bylaws & Policies
      • Bylaws
      • Policies
      • Report a Bylaw Concern
      • Report a Property Maintenance Concern
    • Budget & Finances
      • Multi Year Budget
        • Budget Building Blocks
      • Our Performance & Finance Related Reports
        • Financial Performance & Credit Rating
        • Finance Related Reports
      • Past Budgets
      • Finance Updates
        • Canada Community Building Fund
      • Corporate Asset Management
    • Elections Saskatoon
      • Information for Voters
      • Information for Candidates
      • Ward Boundary Changes
      • Reports
      • History & Results
        • Past Elections
Menu

702 & 706 Victoria Avenue

Learn the details of the applicant's proposal and development review process.
  • Latest Service Alert
  • Latest News Release
  • Checking for updates...
  • Checking for updates...

Realtime Feed Loading...

City of Saskatoon
  1. Engagement Projects
  2. 702 & 706 Victoria Avenue

Proposal

Public Information Meeting

A Public Information Meeting was held on January 27, 2026. See the 'Public Information Meeting' tab for the presentation materials.

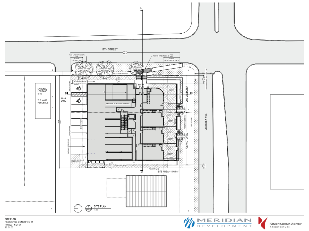
The Planning and Development Department has received an application from Kindrachuk Agrey Architecture on behalf of Meridian Development (the applicant) proposing to rezone 702 and 706 Victoria Avenue, located in the Nutana neighbourhood.

Proposal

The subject properties are currently zoned RM3 – Medium Density Multiple-Unit Dwelling District. Multiple-unit dwellings are permitted at this location to a maximum height of 15 metres and 4 storeys.

The applicant proposes to rezone the properties to RM5 – High Density Multiple-Unit Dwelling District, subject to a Zoning Agreement, to accommodate a 6-storey multiple-unit dwelling. A Zoning Agreement is a legal agreement which establishes site-specific regulations for how a property may be developed and used, outlining the permitted use of the land and regulations related to building form, height, setbacks, site layout, and other considerations.

The proposal includes a mix of dwelling units on the first to sixth floors, including ground-oriented street access units along Victoria Avenue. Exterior and enclosed vehicle and bicycle parking is proposed, including one underground level. Vehicle access to the site is from the rear lane.

See the 'Plans and Renderings' tab for more information.

Image:
Location Map

 

Plans & Renderings

  • Full Drawing Set
  • Heritage Impact Statement - Marr Residence (326 11th St E)

Proposed Site Plan

Image:
Proposed Site Plan

View from Northeast (intersection of Victoria & 11th)

Image:
NE Perspective

View from Southeast (Victoria Ave)

Image:
SE Perspective

View from Northwest (11th St)

Image:
NW Perspective

Building Section (North-South)

Image:
Building Section NS

Building Section (East-West)

Image:
Building Section EW

Background & Process

Background

All property in the City of Saskatoon is assigned a zoning designation under Zoning Bylaw No. 9990. Within each zoning designation, specific land uses are either permitted, discretionary, or prohibited.

Applications to change the zoning of a property are evaluated on a case-by-case basis where both the subject site and the surrounding neighbourhood are considered in the review.

Application Process

  1. Review by City Departments: When an application to amend the Zoning Map is received, the Planning and Development team checks if it follows the City's Official Community Plan, Zoning Bylaw and other rules. They also send it to other City departments to look at the technical details, such as if the water, wastewater, stormwater and transportation systems can support the proposal.
  2. Public Engagement: After the internal review by the City, the public gets a chance to look at the proposal, ask questions and give feedback. Property owners within 75-150 meters of the site, the Community Association and the Ward Councillor are notified and invited to comment. A public information meeting will also beh held for this application.
  3. Report Preparation: Planning and Development writes a report with a recommendation on the application. This report includes feedback from the internal review and the public.
  4. Municipal Planning Commission Review: The report is first reviewed by the Municipal Planning Commission, which advises City Council.
  5. City Council Decision: The final decision is made by City Council at a Public Hearing. They consider the report, the recommendation and the feedback from the Municipal Planning Commission. Anyone from the public can submit written comments or speak at the hearing.

What is a Zoning Agreement?

A Zoning Agreement is a binding legal agreement that, if approved by City Council, is tied to the land and ensures that only the specific development proposal put forward by the applicant can be constructed on the property. It may specify permitted uses of the land and standards respecting building form, scale, and site layout, among other considerations. A Zoning Agreement cannot be amended or removed from the property without going through a subsequent rezoning process, including public engagement and a decision by City Council.

Public Information Meeting

Public Information Meeting

Tuesday, January 27, 2026
6:00 - 8:00 p.m. (come and go)
Nutana Collegiate - Library, 411 11th Street East

View the presentation materials from the meeting:

  • City display boards
  • Applicant display boards

Contact Us

Planning & Development
306-975-2645
Email Us

Timeline

  • Fall 2025

    Technical Review
  • January/February 2026

    Community Engagement
  • Tuesday, January 27, 2026

    Public Information Meeting, 6:00-8:00 pm, Nutana Collegiate
  • April 28, 2026

    Municipal Planning Commission
  • May 27, 2026

    City Council Public Hearing

Related Pages

Official Community Plan
Digital Zoning Bylaw
Nutana Corridor Plan

Related Documents

Full Drawing Set 6.03 MB
Heritage Impact Statement - Marr Residence 1.86 MB

Connect With Us Online

Visit Contact Page

  • Twitter
  • Facebook
  • YouTube
  • Instagram
  • Linkedin

City Hall

222 3rd Ave North
Saskatoon, SK
Canada
S7K 0J5

Hours Mon - Fri: 8am - 5pmSat - Sun: Closed
Stat Holidays: Closed

Phone Us

Service Saskatoon
Customer Care Centre
Available 24/7
306-975-2476
Inquiries: Utilities, Property Taxes, and Parking
Mon - Fri: 8:30am - 4:30pm
306-975-2400
Saskatoon Light & Power
Available 24/7
306-975-2414
Saskatoon Police
306-975-8300
Saskatoon Transit
306-975-3100

Can't find the number you are looking for?
Try our directory

Quick Links

  • News Releases
  • City Statements
  • Public Notices
  • Events
  • Service Alerts
  • Interactive Maps

Home

© Copyright 2026 City of Saskatoon

  • Privacy Statement
  • MyCity